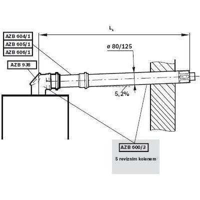
Odkouření vodorovné s kontrolním T-kusem, 0,5 - 0,7 m dvojité potrubí vedené vodorovně přes střechu nebo zeď připojení na kotle CERAPUR a CERASMART nezávislé na přisávání vzduchu z místnosti instalace kotle systémově (s kotli Junkers) odzkoušené a tudíž bezpečné díly osvědčený zásuvný systém pro zkrácení montážní doby
Koupit za 4 492 Kč- Od nejoblíbenějších
- Od nejlevnějších
- Od nejdražších
Popis
Odkouření vodorovné s kontrolním T-kusem, 0,5 - 0,7 m dvojité potrubí vedené vodorovně přes střechu nebo zeď připojení na kotle CERAPUR a CERASMART nezávislé na přisávání vzduchu z místnosti instalace kotle systémově (s kotli Junkers) odzkoušené a tudíž bezpečné díly osvědčený zásuvný systém pro zkrácení montážní doby
Parametry
| Výrobce | Bosch |